Beds
baths
sq ft
Price
Home Description
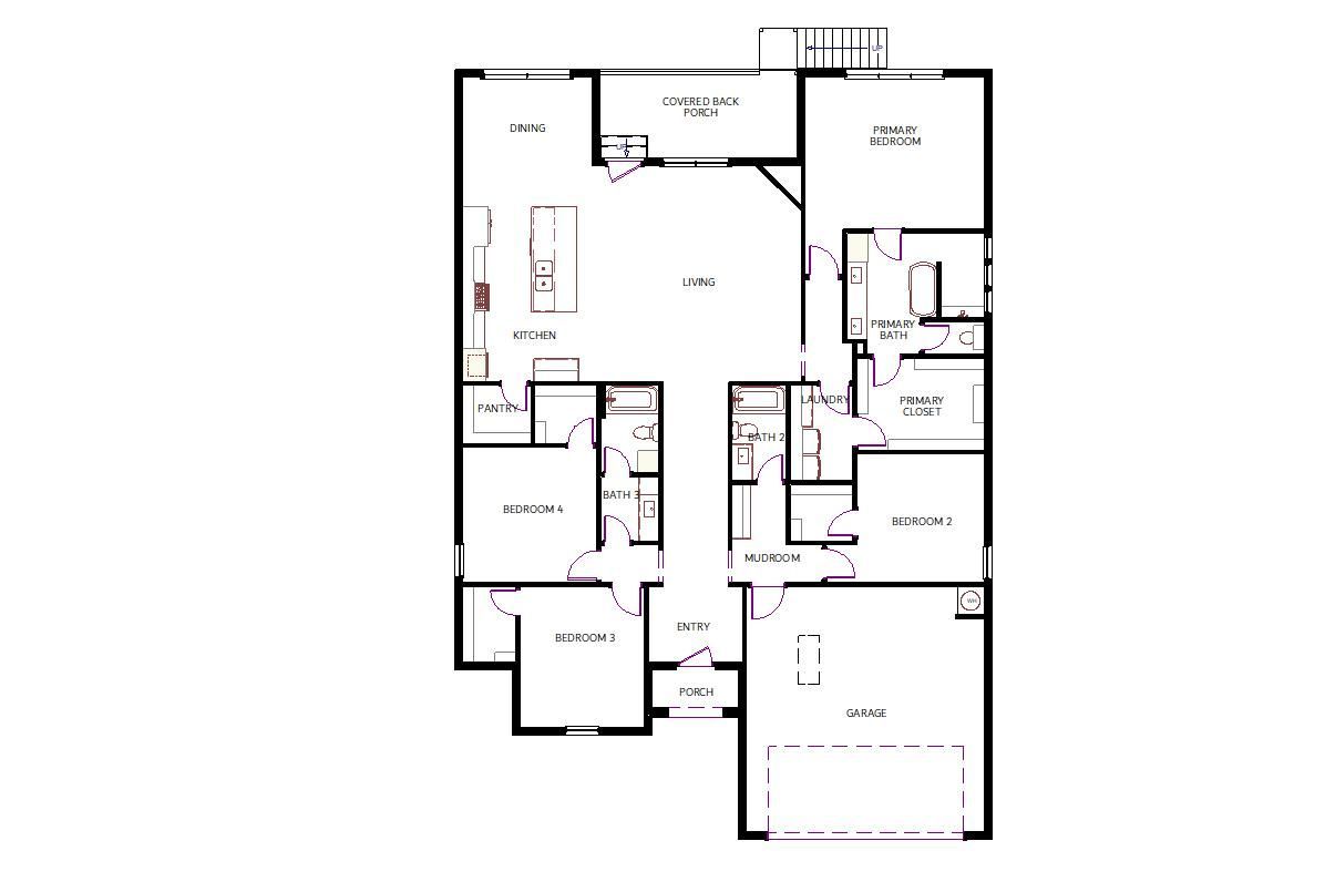
This 4-bedroom, 3-bathroom home offers 2,510 sq. ft. of thoughtfully designed living space in the heart of Stonebrook. With a functional layout and elevated finishes, this single-level home is built for both comfort and convenience.
The open floor plan centers around a spacious living room and a well-appointed kitchen featuring a large island, walk-in pantry, and seamless flow to the dining area and back porch—perfect for entertaining or everyday living.
The private primary suite includes a generous en-suite bath and walk-in closet, while three additional bedrooms and two full baths provide flexibility for guests, kids, or a home office. A dedicated mud room and laundry space add practical touches to your daily routine.
Enjoy quiet mornings or relaxed evenings on the covered back porch, all within one of the most desirable communities around.









